Проект дома со скатной кровлей — Комплит 120
Проект дома со скатной кровлей — Комплит 120
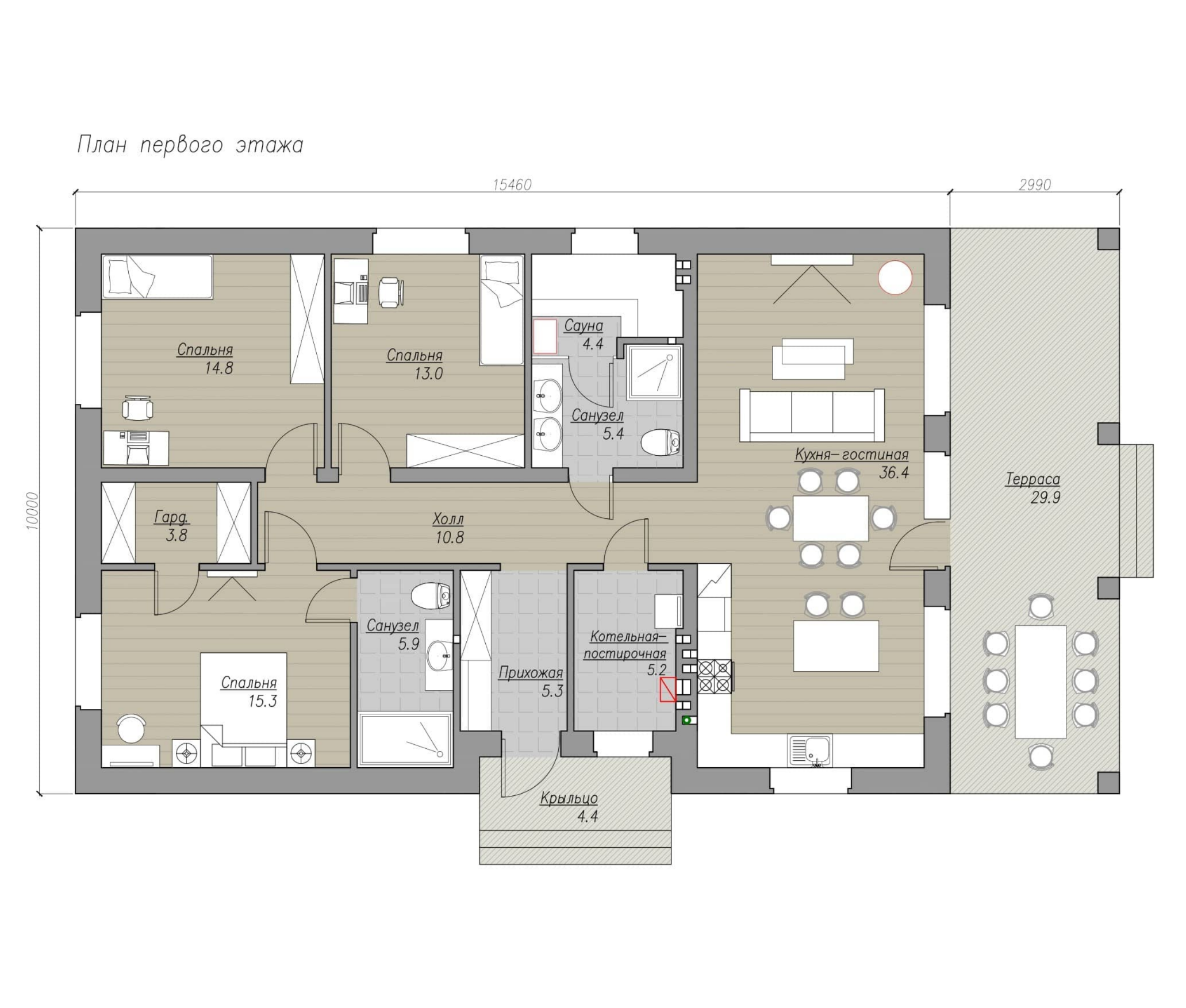
Общая площадь: 120,3 м²
Размер: 15,4 × 10 м
Спальни: 3
Санузел: 2
Цена: от 6 400 000 руб.
Варианты расцветок
Комплектация
| Название | Цена |
|---|---|
| Теплый контур (черновая) | 6 480 000 руб. |
| Теплый контур + Предчистовая | 8 160 000 руб. |
| Теплый контур + Предчистовая + Чистовая | 11 520 000 руб. |
Комплектация
| Название | Цена |
|---|---|
| Теплый контур (черновая) | 6 480 000 руб. |
| Теплый контур + Предчистовая | 8 160 000 руб. |
| Теплый контур + Предчистовая + Чистовая | 11 520 000 руб. |
Дополнительные услуги
| Коммуникации | Цена | Комментарий |
|---|---|---|
| Электричество Сетевая компания 15 кВт | | оплата в Сетевую компанию напрямую |
| Электричество подвод в дом под землей | | |
| Газ | | при наличии технической возможности |
| Вода скважина, колодец, автоматика | | до 50 м |
| Канализация 2 колодца 1,5 по 3 шт | | кольца, доставка, рабочие, трактор |
| ИТОГО: | 990 000 руб. | |
| Благоустройство участка | Цена | Комментарий |
|---|---|---|
| Бетонные отмостки и дорожки | | |
| Забор, калитка | | |
| Автоматические ворота | | |
| Парковочная площадка | | |
| ИТОГО: | 990 000 руб. | |
Дополнительные услуги
| Коммуникации | Цена | Комментарий |
|---|---|---|
| Электричество Сетевая компания 15 кВт | | оплата в Сетевую компанию напрямую |
| Электричество подвод в дом под землей | | |
| Газ | | при наличии технической возможности |
| Вода скважина, колодец, автоматика | | до 50 м |
| Канализация 2 колодца 1,5 по 3 шт | | кольца, доставка, рабочие, трактор |
| ИТОГО: | 990 000 руб. |
| Благоустройство участка |
|---|
| Бетонные отмостки и дорожки |
| Забор, калитка |
| Автоматические ворота |
| Парковочная площадка |
| ИТОГО: | 990 000 руб. |
Понравился проект дома?
Узнайте его актуальную стоимость
Узнайте его актуальную стоимость
Понравился проект дома?
Узнайте его актуальную стоимость
Узнайте его актуальную стоимость
Оставьте заявку в форме ниже или позвоните по телефону 8 (995) 285-15-10